Gli script sono disabilitati nel browser. Impossibile continuare.

Software Ingegneria Strutturale

Versioni pubblicate

Versioni di Found disponibili

Requisiti di sistema

Requisiti minimi consigliati
Found
Progettazione Fondazioni in cemento armato
Found è un programma che consente di effettuare l'analisi strutturale, il progetto e la verifica delle armature degli elementi strutturali in cemento armato di Fondazioni in zona sismica. L'insieme degli Sforzi agenti, definiti in relazione a personalizzate Combinazioni di Carico, può essere affidato a diverse tipologie di Fondazione: su Travi, su Piastre e su Plinti con o senza Pali.
Input, Calcolo ed Output sono ideati per fornire un efficace supporto alla progettazione di queste tipologie di strutture, con un significativo risparmio di tempo nella preparazione dei dati, nell'interpretazione delle stampe numeriche e nel volume dei dati immessi.
  Nuova Versione 2023 disponibile.

Input

Creazione del modello
Found permette di realizzare il modello della Fondazione con estrema semplicità tramite un familiare ambiente grafico ed un innovativo Input "ad oggetti".
L’Input della struttura risulta immediato grazie alla definizione preliminare dei Fili Fissi della Fondazione. Si tratta di inserire, mediante opportune coordinate, dei punti che individuano la posizione dei vari elementi strutturali, regolando così i nodi in corrispondenza dei quali assegnare gli sforzi agenti in Fondazione.
Ogni elemento strutturale (Travi, Plinti, Piastre nervate) viene inserito nel progetto attraverso specifiche finestre di Input Grafico-Interattivo, che consentono di progettare in maniera rapida ed intuitiva, e di avere un efficace controllo dei dati inseriti, per mezzo della visualizzazione grafica degli elementi strutturali. L'Input per i progetti con elevato numero di elementi risulta altrettanto rapido, grazie a potenti fasi di generazione automatica dei dati, di cui il programma è dotato. Per facilitare la fase di Input è inoltre possibile importare la pianta della Fondazione in DXF, utilizzandola come sfondo, disponendo anche di una comoda funzione O-snap sugli elementi della pianta, che rende più veloce e precisa la creazione del modello geometrico della Fondazione.

Archivi di Progetto
Il Programma consente di creare, salvare e riutilizzare degli Archivi di Progetto, che possono essere richiamati anche da un progetto all’altro. Si tratta di veri e propri raccoglitori contenenti informazioni relative alle tipologie di elementi (Materiali, Carichi, Sezioni, Specifiche Progettazione Armature, ecc.), che possono essere utilizzati o meno in un determinato progetto. L'utente può ampliare gli Archivi esistenti di default, ed aggiungerne di nuovi, personalizzandoli, al fine di renderli più adatti alle proprie esigenze.

Input Combinazioni di Carico e Sforzi
Found consente in maniera semplice e rapida la definizione delle Combinazioni di Carico e degli Sforzi agenti negli elementi strutturali di Fondazione. L'inserimento delle Combinazioni di Carico avviene in maniera personalizzata indicando il tipo di verifica (Strutturale o Geotecnica) ad esse associate. Per ogni Combinazione di Carico definita, grazie ad un intuitivo strumento grafico, è possibile inserire le sollecitazioni agenti in Fondazione, provenienti, ad esempio, da una generica sovrastruttura.

Analisi

Azioni sulla costruzione
Le azioni sulla costruzione, che comprendono Pesi Propri, Carichi Permanenti e Sovraccarichi Variabili sono cumulate agli Sforzi inseriti, in relazione alle Combinazioni di Carico definite, in modo tale da eseguire le singole verifiche di resistenza strutturale e di stabilità geotecnica, in accordo alle attuali disposizioni. Il programma prevede, per le verifiche Strutturali e Geotecniche, la definizione delle previste combinazioni nei riguardi di tutti gli Stati Limite (SLU, SLE). In particolare, per le verifiche di resistenza agli Stati Limite di Esercizio, vengono considerate le tre possibili combinazioni, rispettivamente definite come Rara, Frequente e Quasi Permanente.

Calcolo
L'insieme degli Sforzi agenti, che la struttura trasmette globalmente al terreno sottostante, può essere affidato a differenti Tipologie di Fondazione (Travi rovesce, Piastre, Plinti con o senza Pali) su suolo con modello elastico alla Winkler, che considera il terreno come un letto di molle, con modulo di reazione costante.
Il Dimensionamento e la Verifica degli Elementi strutturali viene effettuato a presso e tenso-flessione deviata, taglio e torsione, ottenendo il progetto delle armature e delle staffe col Metodo agli Stati Limite, in accordo alle normative NTC 2018 e NTC 2008.
Effettuato il calcolo, è possibile visualizzare i risultati dell'elaborazione mediante visualizzazione dei diagrammi a video.

Edit Armature
Dopo avere effettuato il progetto e la verifica degli elementi strutturali, è possibile visualizzare a video e modificare interattivamente le armature proposte dal programma, con verifica istantanea delle tensioni/deformazioni. Facendo semplicemente doppio clic sui ferri che si desidera modificare, si apriranno finestre interattive, contenenti le informazioni riguardo alla quantità dei ferri disposti, al diametro e ai nodi iniziale e finale.

Output

Stampe
Gli Elaborati di Calcolo vengono generati in Microsoft WORD, secondo un modello personalizzabile, in formato .DOC .
Il modello di relazione infatti, impiegato di default dal programma, viene fornito con l'installazione del software; pertanto, prima di realizzare un qualunque progetto, è possibile personalizzarlo come si desidera, modificando i font da utilizzare per i titoli e il corpo testo, il layout delle pagine, della copertina, delle tabelle e delle figure, apportando qualsiasi altra modifica voluta, semplicemente usando il più diffuso editor di testi. Il programma legge il modello personalizzato, inserisce dati e risultati del progetto e genera gli Elaborati.
Il grande vantaggio di questa soluzione innovativa consiste quindi nel creare degli Elaborati di Calcolo interamente personalizzati, sulla base di un proprio modello che può essere diverso per ogni tipo di progetto, secondo le particolari esigenze del caso. Per maggiori informazioni in merito, è sufficiente visitare la Guida dedicata.
Nel modello di default, all'inizio di ogni capitolo, vengono riportati commenti ed ulteriori integrazioni, riferiti ai singoli argomenti in questione; il significato delle quantità e delle unità di misura, sono riportate in legende esplicative che precedono le singole tabelle dei dati. Inoltre la lettura dell'esito di ciascuna Verifica risulta facilitato, grazie alla presenza di una apposito check in ciascuna tabella, che consente di controllare immediatamente che tutte le sezioni risultino verificate.
Le Stampe contengono i seguenti elaborati, conformi alle Norme Tecniche delle Costruzioni:
  • Relazione di Calcolo Strutturale
  • Tabulati di Calcolo
  • Relazione Geotecnica
  • Relazione sui Materiali
  • Relazione Esecutiva
  • Computo Materiali
  • Piano di Manutenzione
In particolare, vengono riportati:
  • Dati Fondazione e Azioni
  • Caratteristiche della Sollecitazione
  • Verifiche di Resistenza Stati Limite Ultimi
  • Verifiche di Resistenza agli Stati Limite di Esercizio
  • Verifiche di Stabilità Geotecnica
Disegni
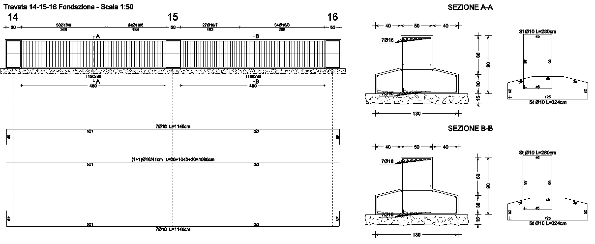
Found consente di ottenere i Disegni esecutivi e la distinta delle armature degli elementi strutturali della Fondazione, da stampare direttamente su qualsiasi stampante supportata da Windows oppure da esportare su file in formato PDF. Inoltre, grazie alla possibilità di esportazione in formato DXF, i disegni possono essere eventualmente elaborati su CAD esterni. I Disegni previsti sono:
  • Pianta Impalcato
  • Armature Travi
  • Armature Plinti
  • Armature Platee
 

Area riservata

Tutti i diritti riservati - Copyright ©S.I.S. S.r.l. 2000-2025 - P.IVA. 02306270873 - Informativa sulla privacy